Zum Hauptinhalt springen Zur Suche springen Zur Hauptnavigation springen

Menü

Lasita Maja Murano 1 Set Gartenhaus Blockhaus 44mm 2-Raum, 390x410, Naturbelassen

Beschreibung

Produktinformationen "Lasita Maja Murano 1 Set Gartenhaus Blockhaus 44mm 2-Raum, 390x410, Naturbelassen"

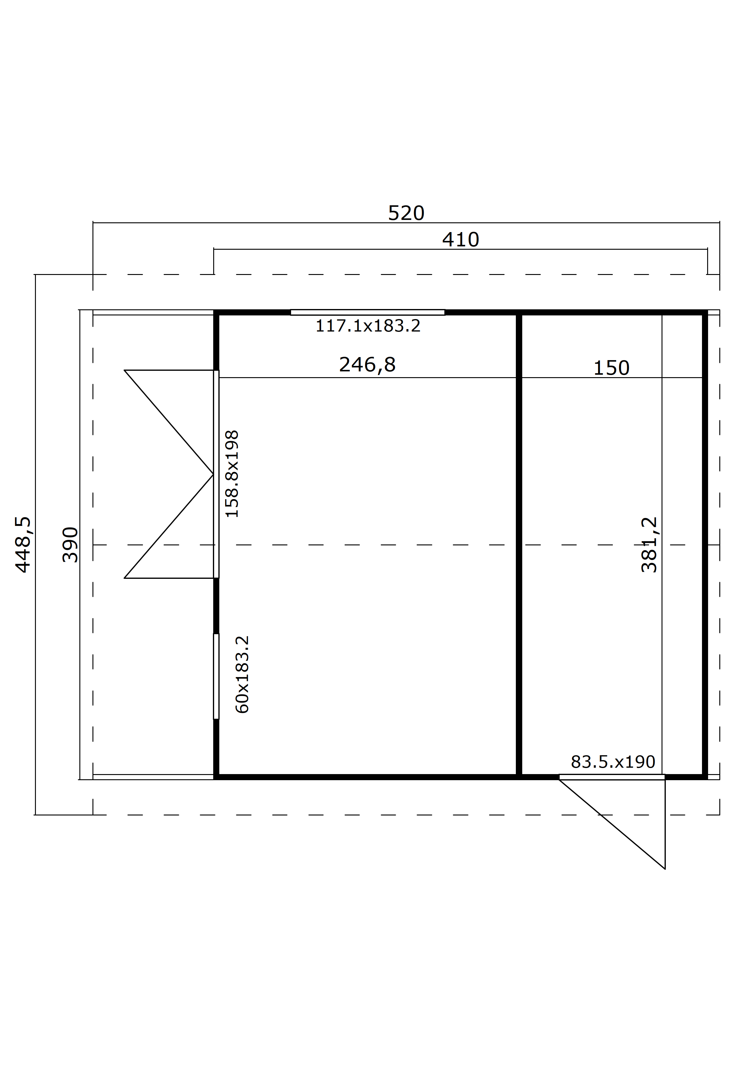
Das moderne Lasita Maja Gartenhaus Murano 1 ausgestattet mit einer 44 mm Blockbohle in Systembauweise ist die perfekte Kombination von Tradition und Moderne. Das klassische Satteldach in Verbindung mit Aluminium Fenster und Türen stehen für dieses formschöne Modell und geben ein behagliches Draußen – Gefühl. Die große Ganzglas-Doppeltür sowie je ein bodentiefes Einzel- und Doppelfenster mit Isolier - Sicherheitsglas sorgen für viel Licht im Innern und ein angenehmes Wohlempfinden. Die hohen Decken vermitteln ein Gefühl von Großzügigkeit. Das Gartenhaus eignet sich bestens für gemütliche Stunden. Klare Linien verleihen diesem Gartenhaus dazu seinen besonderen Charme. Die großzügig überdachte Terrasse mit modernen, lichtdurchlässigen Seitenpaneelen bietet zusätzlich einen geschützten Sitzplatz. Abgerundet wird dieses Multifunktionswunder mit einem separaten Raum für Ihre Gartenutensilien.

Eigenschaften

Außenmaß Breite x Tiefe in mm: 4485 x 5200
Breite innenmaß in mm: 3812
Breite x Tiefe x Höhe in mm: 3900 x 4100 x 3306
Dach B x T in mm: 5200 x 5100
Dachbelag: Dachpappe optional
Dachfläche in m²: 26,52
Dachform: Satteldach
Dachneigung in °: 2
Dachpappebedarf: 3 x 15 m
Dachüberstand Seite in mm: 292
Dachüberstand hinten in mm: 100
Dachüberstand vorne in mm: 10
Farbe: Naturbelassen
Firsthöhe in mm: 3306
Fußboden inkl.: Ja
Gewicht in kg: 1354
Grundfläche in m²: 15,29
Grundform: rechteckig
Hausaufbau: Moderne Eckverbindung
Herstellergarantie: 5 Jahre
Material Haus: Fichte
Material Türen / Fenster: Aluminium
Maße Doppeltür in mm: 1588x1980
Maße Einzeltür: 835x1900
Oberflächenbehandlung: naturbelassen
Onduline bedarf: nicht empfohlen
Paketmaße 1 L x B x H: 4400 x 1180 x 730
Paketmaße 2 L x B x H: 2000 x 1180 x 450
Rauminhalt in m³: 42,72
Schindelbedarf: 10
Schlossart: Zylinderschloss
Schneelast kg/m²: 183
Spiegelverkehrte Aufbau: Ja
Terrasse: Ja
Tiefe innenmaß in mm: 3968
Wandhöhe in mm: 2280
Wandstärke in mm: 44
Zertifizierung: FSC - SA-COC-007606
Schlafboden inkl.: Nein
Stockwerke: 1
Country: DE

Bewertungen 0

0 von 0 Bewertungen

Durchschnittliche Bewertung von 0 von 5 Sternen

Bewerten Sie dieses Produkt!

Teilen Sie Ihre Erfahrungen mit anderen Kunden.


WhatsApp uns