Zum Hauptinhalt springen Zur Suche springen Zur Hauptnavigation springen

Menü

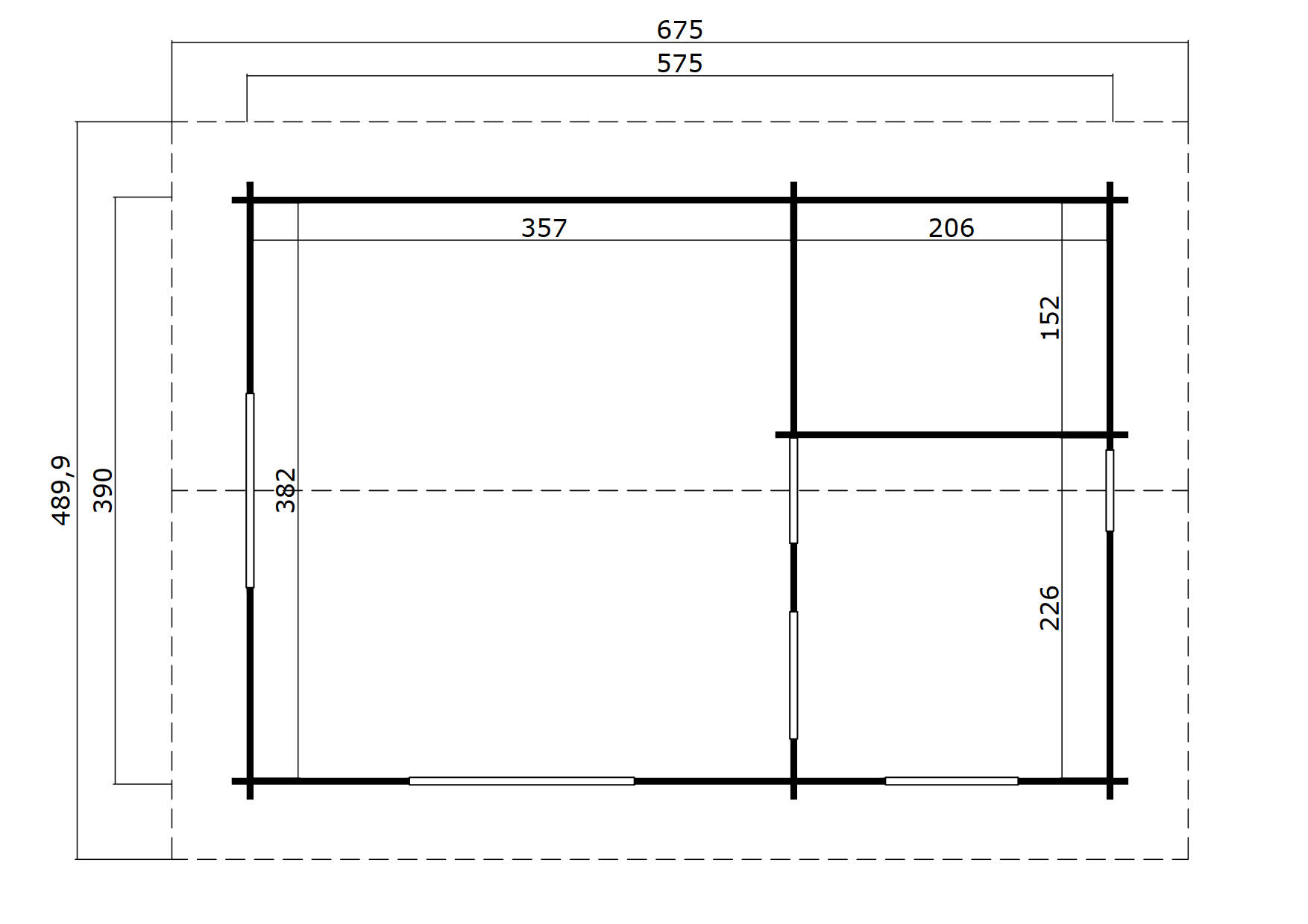
Lasita Maja Caroline Set Gold Gartenhaus Blockhaus 40 mm 3-Raum, 575 x 390, Carbongrau

Beschreibung

Produktinformationen "Lasita Maja Caroline Set Gold Gartenhaus Blockhaus 40 mm 3-Raum, 575 x 390, Carbongrau"

Unser Gartenhaus Caroline ist der perfekte Begleiter für Ihr Wochenende im Freien. Dieses Modell ist mit drei Räumen ausgestattet. Als Stauraum oder Schlafplatz dient der intergrierte Schlafboden, der über eine ausklappbare Treppe erreichbar ist. Im Lieferumfang ist eine Einzeltür enthalten, die je nach Wunsch als Aussen- oder Innentür eingeschnitten werden kann. Damit können Sie dieses Gartenhaus Ihren Bedürfnissen exakt anpassen. Die breite Doppelflügeltür mit Lichtausschnitten bringt viel Licht ins Innere Ihres Gartenhauses und sorgt für ein angenehmes Wohlempfinden. Auf einer Fläche von 21,7 m² lässt es sich hier herrlich entspannen und gemütliche Stunden mit Familie- oder Freundeskreis verbringen. Der ideale Ort zum Verweilen.

Eigenschaften

Außenmaß Breite x Tiefe in mm: 6750 x 4899
Breite innenmaß in mm: 5630
Breite x Tiefe x Höhe in mm: 5750 x 3900 x 3306
Dach B x T in mm: 6750 x 4899
Dachbelag: Dachpappe optional
Dachfläche in m²: 37,12
Dachform: Satteldach
Dachneigung in °: 2
Dachpappebedarf: 4 x 15 m
Dachüberstand Seite in mm: 500
Dachüberstand hinten in mm: 500
Dachüberstand vorne in mm: 50
Farbe: Carbongrau
Firsthöhe in mm: 3306
Fußboden inkl.: Ja
Gewicht in kg: 2158
Grundfläche in m²: 21,66
Grundform: rechteckig
Hausaufbau: Winddichte Chaletverbindung
Herstellergarantie: 5 Jahre
Material Haus: Fichte
Material Türen / Fenster: Fichte
Maße Doppeltür in mm: 1494x1957
Maße Einzeltür: 835x1900
Oberflächenbehandlung: Farbbehandelt
Onduline bedarf: nicht empfohlen
Paketmaße 1 L x B x H: 6300 x 1180 x 940
Paketmaße 2 L x B x H: 2020 x 1180 x 485
Rauminhalt in m³: 61,11, 91,2
Schindelbedarf: 14
Schlossart: Zylinderschloss
Schneelast kg/m²: 86
Spiegelverkehrte Aufbau: Nein
Terrasse: nein
Tiefe innenmaß in mm: 3780
Wandhöhe in mm: 2337
Wandstärke in mm: 40
Zertifizierung: FSC - SA-COC-007606
Schlafboden inkl.: Ja
Stockwerke: 2
Country: DE

Bewertungen 0

0 von 0 Bewertungen

Durchschnittliche Bewertung von 0 von 5 Sternen

Bewerten Sie dieses Produkt!

Teilen Sie Ihre Erfahrungen mit anderen Kunden.


Produktgalerie überspringen

Passende Produkte mitbestellen

11.56
Lasita Maja Caroline Terrasse mit Geländer 40 mm, 365 x 200, Carbongrau Lasita Maja Caroline Terrasse mit Geländer 40 mm, 365 x 200, Carbongrau

Durchschnittliche Bewertung von 0 von 5 Sternen

Lasita Maja Caroline Terrasse mit Geländer 40 mm, 365 x 200, Carbongrau

Zubehör für Ihr Gartenhaus um den Wohlfühlbereich in euren Garten zu erweitern. Passend für das Gartenhaus Caroline. Nur bestellbar in Verbindung mit einem Gartenhaus Caroline. Mit imprägnierten Unterkonstruktion und 18 mm starken Terrassenbodenbrettern. Besteht aus europäischem Fichtenholz. Der Einbau ist aufgrund der beigelegten Montageanleitung einfacht und Sie können in kurze auf Ihrer neuen Holzterrasse entspannen.

Verkaufspreis: 972,00 € Regulärer Preis: 1.099,00 €
Produkt Anzahl: Gib den gewünschten Wert ein oder benutze die Schaltflächen um die Anzahl zu erhöhen oder zu reduzieren.
Stück
WhatsApp uns