Zum Hauptinhalt springen Zur Suche springen Zur Hauptnavigation springen

Menü

Lasita Maja Anders Gartenhaus Blockhaus 44mm mit Anbau, 360x360, Schwedenrot

Beschreibung

Produktinformationen "Lasita Maja Anders Gartenhaus Blockhaus 44mm mit Anbau, 360x360, Schwedenrot"

Hier haben wir ein ultramodernes, helles Gartenhaus mit überdachter Terrasse. Sie schaffen sich so ein 2. Wohnzimmer – diesmal im Garten. Durch 2 große verglaste Doppeltüren können Sie Ihr Haus sowohl vom Garten, als auch über den Sitzplatz betreten . Hier können Sie mit Ihrer Familie und Freunden viele entspannte Stunden verbringen.

Eigenschaften

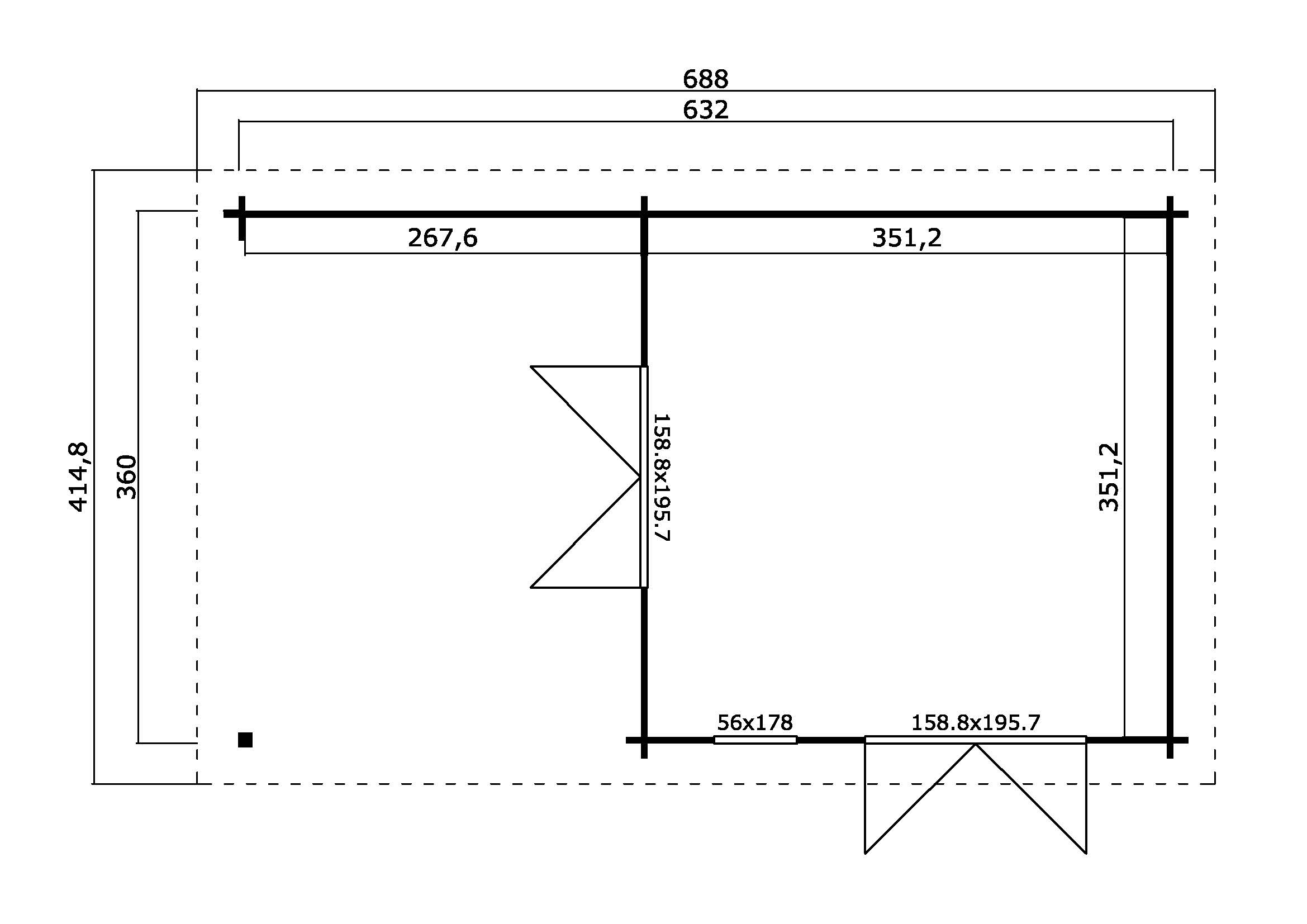
Außenmaß Breite x Tiefe in mm: 6888 x 4148
Breite innenmaß in mm: 6188
Breite x Tiefe x Höhe in mm: 3600 x 3600 x 2337
Dach B x T in mm: 6880 x 4148
Dachbelag: Dachpappe optional
Dachfläche in m²: 28,55
Dachform: Pultdach
Dachneigung in °: 1
Dachpappebedarf: 3 x 15 m
Dachüberstand Seite in mm: 3000
Dachüberstand hinten in mm: 274
Dachüberstand vorne in mm: 27,4
Farbe: Schwedenrot
Firsthöhe in mm: 2337
Fußboden inkl.: Ja
Gewicht in kg: 1556
Grundfläche in m²: 12,33
Grundform: rechteckig
Hausaufbau: Winddichte Chaletverbindung
Herstellergarantie: 5 Jahre
Material Haus: Fichte
Material Türen / Fenster: Fichte
Maße Doppeltür in mm: 1588x1957
Oberflächenbehandlung: Farbbehandelt
Onduline bedarf: 7
Paketmaße 1 L x B x H: 6300 x 1180 x 830
Rauminhalt in m³: 28,12, 69,39
Schindelbedarf: nicht empfohlen
Schlossart: Zylinderschloss
Schneelast kg/m²: 36
Spiegelverkehrte Aufbau: Nein
Terrasse: nein
Tiefe innenmaß in mm: 3512
Wandhöhe in mm: 2223
Wandstärke in mm: 44
Zertifizierung: FSC - SA-COC-007606
Schlafboden inkl.: Nein
Stockwerke: 1
Country: DE

Bewertungen 0

0 von 0 Bewertungen

Durchschnittliche Bewertung von 0 von 5 Sternen

Bewerten Sie dieses Produkt!

Teilen Sie Ihre Erfahrungen mit anderen Kunden.


WhatsApp uns